Related Posts
On July 10, 2023, it was announced that Independence National Historical Park has received a $22 Million grant in order to turn the historic First Bank of the United States into a museum focused on the early American economy.

The History of the First Bank of the United States
In America's first years after winning independence, the United States had countless problems that threatened the stability of the young nation. One of the most pressing issues was the enormous debt that America had been saddled with as it was forced to borrow a fortune to fight the British and win the Revolutionary War. As America's first Secretary of the Treasury,
Alexander Hamilton worked to organize and pay off these debts, but he was hindered by the disorganized and segregated American economy. States, local governments, and even private banks all produced their own currencies which led to considerable difficulties conducting even routine commerce much less the complicated financial organization Hamilton sought to achieve.
In an effort to try and forge and grow a national economy, raise funds, and pay off America's considerable debts. Hamilton proposed the creation of a national bank, which would eventually become the First Bank of the United States. The First Bank was not only a very consequential Federal Bank which had a considerable impact on the economy of the United States of America, but the controversy that surrounded the creation of the bank also holds great importance as the first great Constitutional debate.
Constitutional debates are still common today and history and legal scholars have disagreements over what was the intended meaning of words written centuries ago. What is interesting about this first Constitutional debate over the First Bank of the United States is that it took place just a few years after the Constitution was written and many of the participants directly helped to write the Constitution. While they had agreed on the words of the Constitution together, in their minds, those same words had different intentions. Detractors of the First Bank such at
Thomas Jefferson and
James Madison believed that the Bank was unconstitutional as they believed in a very strict reading of the Constitution and further thought that the centralization of a Federal Bank would benefit the commercial North of the United States at the expense of the more agrarian south.
Ultimately though Hamilton was successful, and the First Bank of the United States was chartered by congress and approved by President
George Washington
in 1791. While critically important in the early years of America, the First Bank remained controversial, and its charter was not renewed by Congress after its initial term expired. The First Bank of the United States closed in 1811 and was subsequently purchased by Stephen Girard, a French Immigrant to Philadelphia who had become one of America's wealthiest citizens. Girard used the First Bank building as the home of his own bank which he established. The building continued to serve as a bank for most of its history until the building was used as offices of the National Park service after the creation of Independence National Historical park in the 1950s. The offices left the building in the 1970s and the First Bank of the United States has now been closed to the public for nearly half a century.
Today, the First Bank of the United States is the oldest building that was built for use by the United States government.
First Bank of the United States Museum
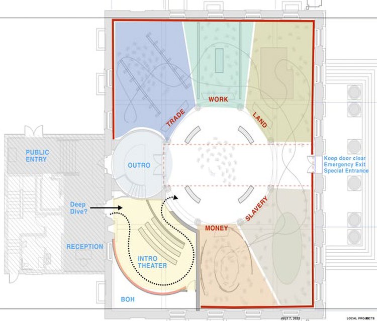
Final plans for the museum are not yet set in stone, but the museum will be dedicated to telling the story of America's early economy and the importance of the First Bank of the United States. Much of the exterior of the first bank is still original and will be cleaned and restored. Much of the original interior of the building has been lost and the bulk of the interior of the building dates back to the early 1800s when the building was used by Stephen Giard as his own bank. While not original, this early 19th century interior is historically significant in its own right and will be preserved and restored. Into this restored interior, interactive exhibits which tell the story of America's Economy will be added. A small addition is also planned for the rear of the building which will serve as an entrance, contains an elevator, and will house the building's new HVAC systems.

A proposed floor plan for the new museum can be seen as well. The new museum intends to include sections on trade, work, land, money and slavery.

The First Bank of the United States is expected to open in 2026, just in time for Philadelphia's giant celebration of America's 250th birthday.